グルメ通り徒歩圏 南原別荘地 4億3800万円

前面は未舗装ですが4mの町道。南原文化会550m。グルメ通り600m。周囲は大きな区画が多く、ゆったりとした木立の中の敷地です。


軽井沢の別荘地は建ぺい率、容積率共に20%です。500坪の敷地があって100坪の建物を建築することができます

この時期はちょっと寂しい風景ですが、春に緑が出てくると一気に変わりますよ。

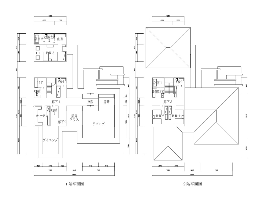
お好きな建物を建築可能ですが、建築家の三井永乗さん(HMA社)(コーン・ペダーセン・フォックス。坂倉建築研究所出身)にプランを作成して頂きました



延べ床面積約93坪(308㎡)のプランです。このような建築も可能です。この建物を建てないといけない、というわけではないですが、気になった方には「建築家の三井永乗さん」をご紹介することもできますのでお気軽にご相談ください
| 価格 | 4億3800万円 |
| 所在地 | 長野県北佐久郡軽井沢町大字長倉 |
| 交通 | しなの鉄道「中軽井沢駅」約2.2km(車4分) |
| 土地面積 | 1,652㎡(約499.73坪) |
| 道路 | 南側幅員約4m町道 |
| 用途地域 | 第一種低層住居専用地域 |
| 建ぺい率/容積 | 20% / 20% |
| 後退距離 | 道路5m・隣地3mかつ高さの1/2 |
| 設備 | 中部電力・町営水道・プロパンガス・浄化槽 |
| 備考 | |
| 取引態様 | 売 主 |

コメント